
ボードレールはヴィクトル・ユゴーへの手紙の中で、「小さな老婆たち」について、ユゴーのいくつかの詩の模倣をしたと書いていた。
その際、彼が頭に置いていた詩の一つは、『東方詩集(Les Orientales)』に納めされた「亡霊たち(Fantômes)」だろう。

その詩は、「ああ! 私は見たのだった、数多くの若い娘たちが死んでいくのを!(Hélàs ! que j’en ai vu mourir de jeunes filles !)」という詩句から始まり、様々な少女たちが、一人一人、数え上げられ、人生の儚さが歌われる。
ユゴーの詩の雰囲気は、友人の画家ルイ・ブランジェの絵画によっても知ることができる。
ボードレールは、「小さな老婆たち」の第2部で、まず最初に三人の女性に呼びかける。
(朗読は、2分10秒から。)
最初にボードレールが描く3人の女性は、19世紀前半にパリの街で人気のあったカフェや劇場と関係している。
そのために、後の時代の読者あるいは外国の読者にとっては、知らない固有名詞が多く、理解が難しいものになっている。
逆に言えば、詩を理解するために、一定の知識が必要とされる。
II
De Frascati défunt // Vestale enamourée ;
Prêtresse de Thalie, // hélas ! / dont le souffleur
Enterré / sait le nom ; // célèbre évaporée
Que Tivoli jadis // ombragea dans sa fleur,
II
今はなきカフェ・フラスカティの、恋する「巫女」よ。
演劇の女神タレイアに仕える女司祭よ、ああ!プロンプターは、
埋葬され、その名を知る。名高い儚き女よ、
チヴォリは、かつてお前に影を投げかけた、その花の中!


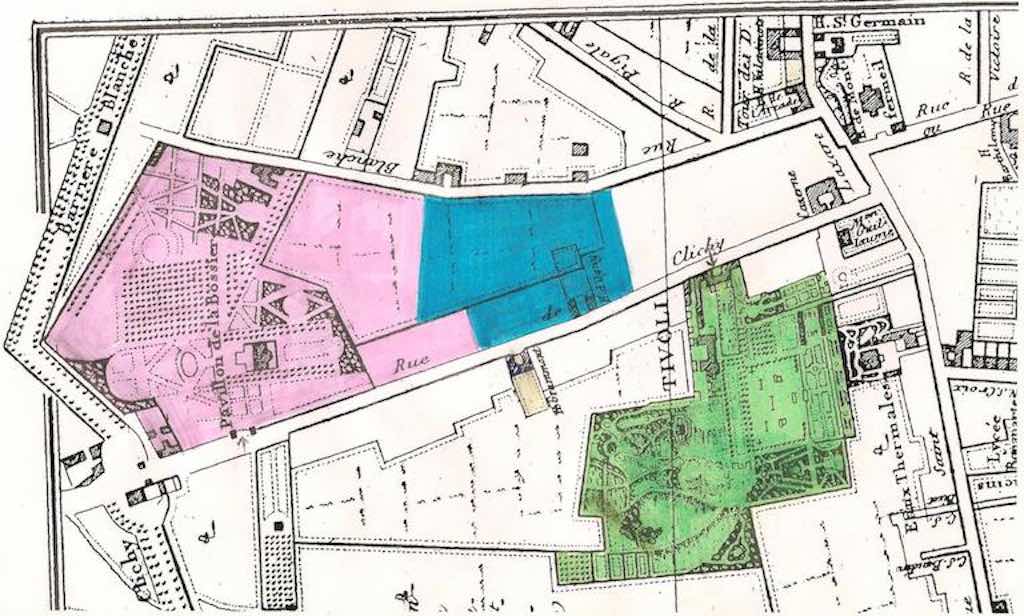
Frascatiは、18世紀後半から19世紀前半にパリで人気のあったカフェ・フラスカティ。
カジノやダンス場などを含み、ファッショナブルなパリの人々が集う場所だった。
内部には、ヴィーナス像が飾られていたらしく、Vestale(女神ウェスタに仕える巫女)とは、そのカフェに集う女性の代表と考えてもいいだろう。
フラスカティに「défunt(亡き)」という形容詞が付されているのは、1836年には廃業し、詩の執筆時期である1859年にはすでに存在しないため。

演劇の女神「タレイア(Thalie)」の「女司祭(Prêtresse)」とは、舞台に立つ女優だと考えられる。
舞台の下の小さな穴には、台詞を忘れた時にそっと教えてくれる「プロンプター(souffleur)」が潜んでいる。
そのプロンプターは「埋葬(Enterré)」されている。
その言葉は、前の行にあるsouffleurを形容するのだが、次の行に送られている。それはルジェという詩の技法で、enterréを強調することになる。
彼は、舞台よりもさらに下、つまり地面の中に埋められる。

「儚き女(évaporée)」は、「蒸発する(s’évaporer)」という動詞に由来し、軽薄な人間を意味する。
しかし、ここでは「チヴォリ(Tivoli)」という名前の娯楽施設に通い、流行の先端をいく女性を指しているものと考えられる。彼女たちは、「奇跡の(Merveilleuses)」とか「信じられない(Incroyables)」と呼ばれていた。


ただし、パリの中心にあるカフェ・フラスカスティと比べ、いくつかあったチヴォリはどれも郊外にあり、レベルは落ちた。
ボードレールが1859年頃執筆し、1863年に発表した「現代生活の画家」には、そうした娯楽施設や、そこに集う女性たちの記述が見られる。
チヴォリには室内だけではなく、大きな庭があり、野外での催し物も開催された。ボードレールはそのことを頭に置き、「花の中で、影を投げかけた(ombragea dans sa fleur)」という映像を、女性に付与したに違いない。
こうして、第1詩節では、三種類の女性が描き出される。
巫女は「恋し(enamourée)」、「消え去る(évaporée)」と韻を踏み、儚く消え去る。
その一方で、「プロンプター(souffleur)」は、「花(fleur)」と豊かな韻を踏み、地下からの息吹が花となって開花する印象を作り出す。
従って、第1詩節には、消え去るものと命を与えるものの二重性が潜んでいることになる。
第2詩節では、「酔わせる(enivrer)」と「羽根(ailes)」「天(ciel)」という言葉が使われ、ロマン主義的な「陶酔、忘我(extase)」が歌われる。

Toutes m’enivrent ; mais parmi ces êtres frêles
Il en est qui, faisant de la douleur un miel
Ont dit au Dévouement qui leur prêtait ses ailes :
Hippogriffe puissant, mène-moi jusqu’au ciel !
全ての女たちが私を酔わせる。しかし、弱々しいそうした生き物の中で、
幾人かは、苦痛を蜜にし、
こう言ったのだ、羽根を貸してくれる「献身」に向かい。
逞しいヒポグリフよ、私を連れていって、天空まで!
「陶酔」の中で、人間の内面と外部に広がる物質世界が一体化し、人は「忘我(extase)」の状態になる。
我を忘れ、時間を忘れ、永遠の今を生きる。
ボードレールにとって、その状態は、「幸福」の瞬間であり、「美」の時である。
その結果、第1詩節で呼びかけられた3人の女性を含め、「全ての女性(toutes)」が、彼を酔わせ、美へと導く存在になる。
そうした中でも、「苦痛を蜜にする(faisant de la douleur un miel)」女性たちがいる。
苦しみを非金属、蜜を金と考えると、彼女たちは錬金術師であり、「醜」を「美」に変える存在と見なすこともできる。

その転換は、プラトン的な愛によって行われる。
現実に生きる人間が天上のイデア界に向かう時には、愛(エロース)の熱によって羽根が生え、天へと導かれていく。
プラトンにおいて、現実とは感覚的な仮象の世界であり、イデア界とは理性的な永遠の真理の世界だった。そして、真理の世界はまた美の世界でもあった。

愛は美へ向かうエネルギーなのだ。後の時代に愛の表現となるキューピットに羽根が生えていることを思い浮かべると、羽根の暗示するものが理解できる。
ボードレールはここで、「羽根(ailes)」を与えてくれるのを「献身(Dévouement)」とする。
その名詞の最初が大文字になっていることで、「献身」が固有名詞と同じ価値を持つようになり、具体的な存在として感じられる。
その献身とは、弱々しい老婆たちを目にする通行人が、彼女たちに親しげに投げかける愛ある眼差しなのかもしれない。
詩句の中では、その愛は、鷲の頭を持つ伝説的な馬である「ヒポグリフ(Hippogriffe)」によって具現化される。その天馬に向かい、女たちは、天に導いてくれるように懇願する。
第2詩節は、「陶酔」から始まり「天空」で終わる。そして、中間には、「苦痛」を「蜜」に変える錬金術が置かれている。
ここで歌われているのは、プラトンの愛の神話に基づいたロマン主義詩学であり、ロマン主義の先頭に立っていたのがヴィクトル・ユゴーだった。
第3詩節になると、ユゴーの詩句の「模倣」が、はっきりとした形で現れる。そして、その余白からボードレールのクリエーションが垣間見えてくる。
L’une, par sa patrie au malheur exercée,
L’autre, que son époux surchargea de douleurs,
L’autre, par son enfant Madone transpercée,
Toutes auraient pu faire un fleuve avec leurs pleurs !
一人の女は、祖国によって、不幸に堪える訓練をされ、
別の女は、夫が苦痛を過剰に背負わせた。
別の女は、子どもに苦しめられた聖母。
全ての女たちを集めれば、一本の大河を作ることができただろう、彼女たちの涙で!
女性たちを「一人」「別の一人」と列挙し、最後に「全て」とまとめる形式は、ユゴーの「亡霊たち」の第2部にそのまま見られる。
Que j’en ai vu mourir ! — L’une était rose et blanche ;
L’autre semblait ouïr de célestes accords ;
L’autre, faible, appuyait d’un bras son front qui penche,
(…)
Toutes fragiles fleurs, sitôt mortes que nées !
なんと数多くの娘達が死ぬのを見てきたことか! ——— 一人は、ピンクで白かった。
別の一人は、天上の和音を耳にしているようだった。
別の一人は、か弱く、一本の腕で、傾く頭を支えていた。
(中略)
全てのか弱い花たちは、死んでいった、生まれるとすぐに!

「なんと数多くが死ぬのを見てきたことか! (Que j’en ai vu mourir)」という詩句は、第3部の冒頭で模倣される。
それに対して、ここでは、l’une, l’autre, l’autre, toutesという連なりが、そのまま踏襲されている。
この詩句を目にしたユゴーは、その模倣をすぐに読み取り、自分の後を告ぐ詩人の存在を感じたのかも知れない。
すでに言及したように、彼はボードレールへの返信の中で、「あなたは新しい震えを作り出した。」と書いた。その「新しさ」は、ユゴー自身の詩のリニューアルという意味だったのかもしれない。
他方、ボードレールにとって、「新しさ」とは、模倣の余白に滲み出す何ものかの中にあった。
すでに引用した手紙の一部をもう一度読み返してみよう。
二番目の詩(「小さな老婆たち」)は、「あなたを模倣することを目指して」書いたものです。(私のうぬぼれを笑って下さい。自分でも笑っています。)あなたの詩集から何編かを読み返しました。素晴らしい慈悲の心が、感動的な親密さと混ざり合っているものです。私は時々、絵画展で、惨めな画学生が巨匠の作品を模写するのを見てきました。巧みに描かれたものも、稚拙なものもありました。でも、彼らの模写の中に、彼らの知らないうちに、時に、彼ら自身の性質に由来する何かが含まれていることがありました。優れたもののことも、卑俗なこともありました。
ボードレールがユゴーの中に読み取った「素晴らしい慈悲の心(une charité si magnifique)」が、第2詩節に記された「献身(Dévouement)」かもしれない。その心が、天空に駆け上がる羽根を生えさせる。
従って、詩句の形だけではなく、意味的にも模倣している。
しかし、その模倣の中に、模倣者「自身の性質に由来する何か(quelque chose de leur propre nature)」があり、それこそオリジナリティーであり、「新しさ」でもある。
ボードレールは「パリの亡霊たち」を通して、その「新しさ」、「新しい美」を探求したのだった。

第3詩節では、第1詩節と同じように、3人の女性が描き出される。
彼女たちは身近な存在であり、手紙の中で言及された「感動的な親密さ(une familiarité si touchante)」を思わせる。
一人は、「祖国(patrie)」によって「試練に晒され(excercée)」、「不幸(malheur)」に苦しむ女性。
当時、イタリアやポーランドからの政治的亡命者がパリに数多く存在し、ボードレールもイタリアから亡命してきた女性を知っていたという。
別の一人は、「夫(mari)」から「苦痛(douleurs)」を「過度に負わされた(surchargée)」女性。
フランスでは、今でも、夫の家庭内暴力によって、年に130人ほどの女性が殺害されているという報告がある。3日に1人のペース。
19世紀にはよりひどい状況だったと想像される。
別の一人は、子どもに「苦しめられる(transpercée)」女性。
transpercerとは本来、剣で突き通すという意味だが、剣で刺すのと同じほどの苦痛を引き起こすという意味もある。
母を「聖母(Madone)」と記していることから、「子ども(enfant)」とは、義父に反抗し続けたボードレール自身のことを考えていたのだろうか?
いずれにしろ、3人の女性を列挙した後で、全ての女性たちの「涙(pleurs)」を集めれば、「大きな川(fleuve)」になっていただろうと、彼女たちの苦しみの大きさ、深さ、数の多さを強調する。
これらの姿をユゴーの歌う娘たちの横に置くと、同じように弱々しく(fragile / frêle)はあるが、しかし、ボードレールにおいては、「苦痛(douleurs)」により大きな比重が置かれていることがわかる。
そして、その苦痛が、最後に「涙(pleurs)」と韻を踏み、3つの詩節から構成される「小さな老婆たち」第2部の全体的な色調が鮮やかに描き出される。